
對室內設計師來說,我們的角色就像是廚師一樣,要知道客戶喜歡吃什麼,重視什麼口味的料理,我們去市場選材、研究工法、如何下刀、烹調順序,以及各式的香料搭配,原食材的碰撞與搭配以及掌握火侯,在在都能顯示出廚師的功力。
而室內設計師從傾聽屋主的需求,再依房子的特性,如何下筆,如何配置到選材,以及要運用哪些工種、異材質的銜接與搭配、生活動線需求與規畫,更重要的是,預算的掌控,也同時考驗著設計師的功力。
此案屋主原本在台北就有一間大廈頂樓加蓋的房子,想給小孩大一點的生活空間,毅然決定與先生搬到龍潭租間透天厝,讓小孩快樂成長。對屋主夫妻來說,這很重要。
於是每天往返台北與龍潭,台北工作,龍潭居家,而台北的房子便出租出去。
隨著小孩慢慢長大,到了適讀國中的年紀,想讓他們讀台北的學校,為了不舟車勞頓,加上台北的房子也因租客多年,有些地方需要重新整修,於是找了大漾帝空間設計來幫忙重新整頓。
屋主傳了幾張圖給設計師,我們覺察到屋主喜歡異國風情,加上自然樸實的調性,所以大漾帝團隊在內部討論時,主軸牆面以沙漠紅的色調,加上沙漠色去呈現。



而屋主的職業是廚師,所以在動線規畫上,我們以廚房為中心向外擴散,由「食」去串起人的生活與感情,因為民以食為天,由廚師爸爸做的愛心料理,能讓家人直觀感受到一家之主對太太及小孩的愛。
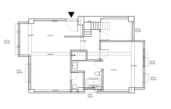
現況照片如下:






屋主的職業是廚師,所以會希望廚房有足夠的空間,可以放各式的鍋具,由於有頂樓加蓋,所以樓下的兩間房間給小孩子,先生與太太的主臥就規畫在頂加的部份,另外原有鋼琴,腳踏車、鍋具,電器設備、收納櫃等都要先規畫進來。

規畫前的 7F

規畫前的頂加樓層

規畫後的 7F

規畫後的頂加樓層
台北市政府2022年修改「台北市違章建築處理規則」,針對1994年以前的既存違建將「不得修繕」,也就是說像是頂樓加蓋、樓地板等若有修繕行為,政府可優先查報拆除,新規定已於(2023)年1月1日正式實施。
若有修繕行為,將優先拆除。即使連颱風、地震造成損毀也不能修繕,要讓「既存違建」逐漸淘汰,走入歷史。
台北市的室內裝修審查較為嚴謹,屋頂既存違建的室內裝修,如果室內隔間變動及施作天花板等裝修行為,必須先提出申請。所以我們在規畫時,因應法規,在頂樓加蓋的隔間部份並沒有做變動,只做了材質上的翻新及風格上的一致。
此案由於法規的限制,趕在2022年12月底新法實施前就送建管處申請,經過好幾個月,終於核准了室內裝修許可。也因這樣,我們頂樓加鐵皮屋的部份,也得以在法規實施前,能做完整修繕。
屋主有許多原有的家俱要保留,比如小孩的書桌,尚有一些五斗櫃、家電等。在規畫初期時,幫屋主考量並預留位置。
廚房規畫在進門處,巧妙的設計一個吧台,可以避開開門見灶的風水,又可以一進門看見為家人在廚房做的料理;又或者是在廚房忙著,可以看見回來的家人們。
廚房是靈活的雙動線空間,加上屋主職業是廚師,以這為出發點,串起屋主這一家歡樂的生活,看著夫婦與小孩的互動,覺得屋主家人們情誼深厚。
當廚房門關起來時,剛好電視牆整體顯的面寬又有層次感,搭配特殊塗料及異國色彩的配色,在客廳以沙漠玫瑰的色系加上大漠色系,讓人更有摩洛哥風情的原始樸實。
我們將櫃子門片用藤編的做法,展現東西方融合的韻味,玄關穿鞋椅的下方銑了一個洞,是要預留給家中的另一位成員貓咪的小巧思,所以我們在規畫初期就先預想好「貓沙」的位置。
小孩的房間,也依原有的書桌去做格局上的變化跟配置,進頂樓的主臥有更衣及收納區,可收納屋主許多的東西。
在裝修之前保護很重要,不管是梯廳還是電梯內,都要做好保護,才不會後續延伸出許多麻煩。

在老屋翻新之前,就是要先徹底破壞才能徹底建設,畢竟三十多年的房子,有管線老舊及漏水等問題,所以得重新配管,隔局也全部重隔,壁磚,地磚重舖所以也要打至見RC。

瓦斯管線由於壁面外露,長期風吹日矖很容易腐蝕,所以管線一定要重配才會安全,不會有瓦斯外洩的疑慮。

砌隔間近年來很多都用防潮石膏磚,石膏磚的製造成分為砂、水泥、循環沙漿、石灰(氧化鈣)、石膏(硫酸鈣)。

其特性優點是,吸水率低且無壁癌情況,抗鹽水、抗酸、抗鹼性,石膏磚牆具有隔熱效果,可調節室內空氣濕度。石膏磚牆固定方式容易,施工快速且易維持整潔,隔音較白磚與輕隔間好。
表面不需使用水泥粉刷,石膏磚的縫隙不易龜裂,並有耐震、不易倒塌等特點。石膏磚還可開立防火證明,磚牆的釘掛重量高,並且它石膏磚牆也是綠建材材質。
石膏磚砌好後,地面要先做一次的防水底層,水電配管線後,要再做一次全面防水,大漾帝設計很重視這個環節,在美麗的裝修外表下,內部的基礎結構更是重要。




當防水完成後,經過壓力測試後,確認冷熱水管無漏水之虞後,進行貼磚計畫工程。


泥作師父會用磁磚整平器讓磁磚對齊平整,讓施工品質更能好更美觀。
去年2023大缺工,原物料、物價又上漲的情況下,工班的費用也提高不少,所以裝修費用會愈來愈高,如果有想要裝修的朋友,能裝修該裝修就盡早裝修,因為法規也只會愈來愈嚴格,成本也只會愈來愈高。


據說未來不久後,政府也朝課徵碳稅的方向規畫,全球最早實施碳稅的國家為瑞典,於1991年開徵,第一個碳排放交易系統由歐盟於2005年成立,而台灣則預計於2024下半年開始徵收碳費。綠色建材造成的「綠色通膨」即將來臨,那有可能未來的5至8年,因為綠色建材的成本增加,未來的室內裝修成本也會有上漲的空間。



木作施工現場,木工是慢工出細活,尤其是櫃子有異材質介界相結合,需要不同工程做溝通時,設計師扮演很重要的角色。
大漾帝通常在設計階段時,會用3D圖與屋主討論。來看看我們的3D效果圖吧:






整場我們以摩洛哥色調去做舖陳,帶著異國風情結合復古年代的意像去呈現,所以運用了籐編及特殊塗料去做設計的元素,客廳採用沙漠玫瑰色+奶茶色系當主色,以及一些類「波西米亞」的圖騰磁磚,形成一種「自由浪漫」的風格意象。
波西米亞(Bohemian)風格是一種充滿自由、輕鬆、浪漫和多彩的設計風格。波西米亞風格保留着遊牧民族特色,其特點是鮮豔的手工裝飾和粗獷厚重的面料、蠟染印花、皮質流蘇、手工細繩結、刺繡和珠串,代表浪漫化,民俗化,自由化,也代表一種藝術家氣質,一種時尚潮流,一種反傳統的生活模式。它的元素包括:
台灣的人民骨子裡也帶著流浪的浪漫,「藤編」是臺灣傳統手工藝,多用來製作日用品。異國色彩的波西米亞風有著編織圖騰元素配上台灣的藤編,組成了本案的風格,感覺很合拍。來看看我們此案的完工照吧!

一進門左邊為鞋櫃及穿鞋椅,有充份的收納空間,右邊可放置些展示品,九宮格可放置家中大大小小的鑰匙或信件等

一進門片可若隱若現的看見廚房的家人正在廚房料理美味食材

將展示及收納跟衣帽櫃集中於餐桌後方,用藤編來做門片









女兒房以奶茶色系為主,延伸客廳的主牆顏色


男主喜歡有個性的黑灰色調系,於是我們選用灰色的窯變磚及石英磚搭配,加上五金以黑色為主創造個性又有質感的浴室。

客浴以淺灰色調加上粉色六角磚呈現活潑少女感的空間。

走道一隅
從以上老屋翻新的案例,可以看出大漾帝對於與客戶溝通,以及施工細節非常用心。如果你對於室內設計有更多疑問,希望獲得更理想的解答,也希望能找到一家專業且善於溝通室內設計公司,不妨和大漾帝國際室內裝修有限公司連繫,讓我們為你實現家的夢想!